Bourguillon, Fribourg
2022 - Concours ouvert SIA142 - finaliste 2ème tour
Construction d'un quartier de logements locatifs durables
Equipe : Julie Lucas
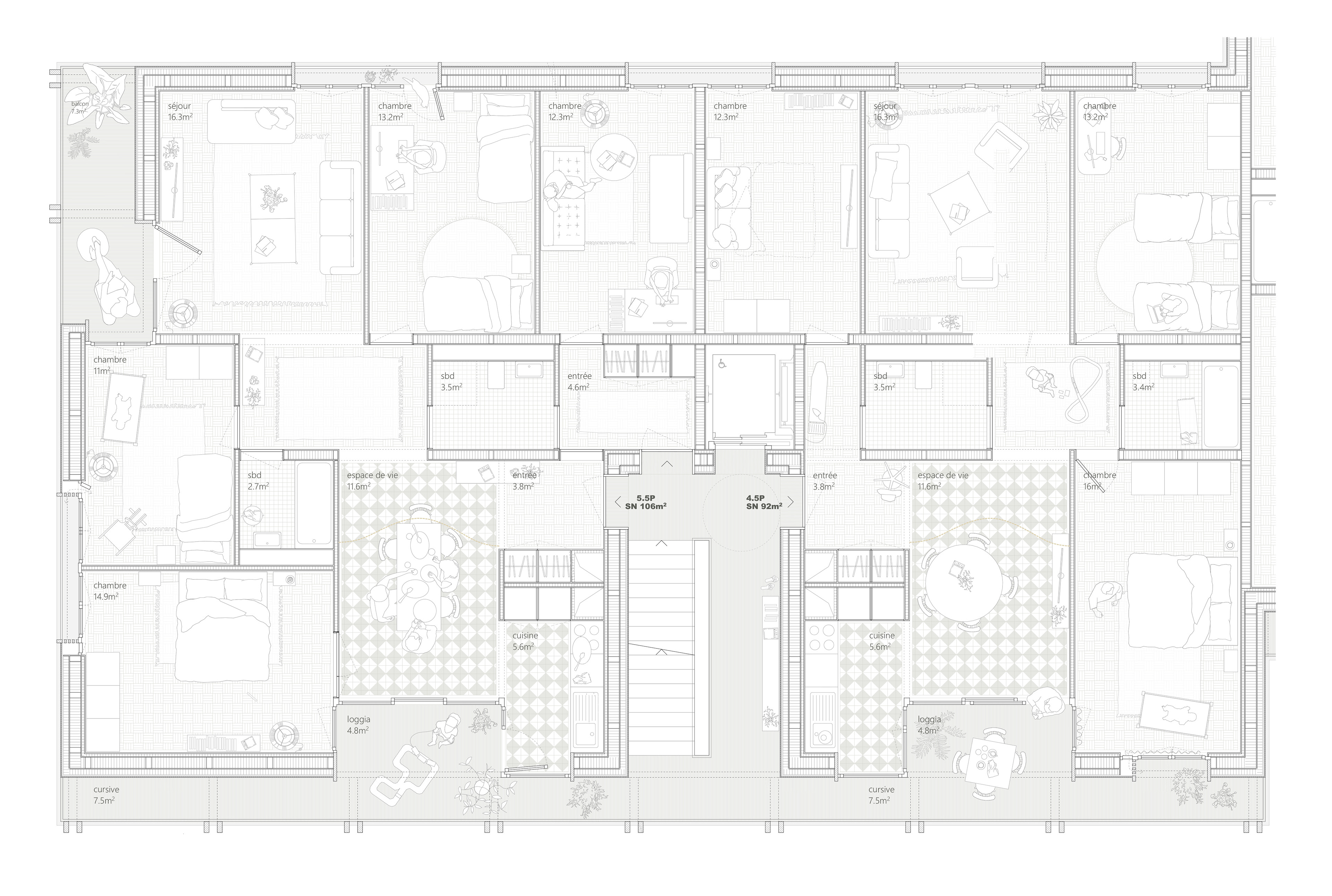
Le projet propose trois volumes compacts organisés perpendiculairement pour créer des vides qualitatifs, renforcer la perméabilité vers la forêt et dialoguer avec les gabarits existants du hameau. L’ensemble génère une morphologie lisible, inspirée des implantations rurales, avec une place d’entrée et une « cour de ferme » structurant la vie collective. Les bâtiments sont conçus pour offrir des typologies traversantes ou tri-orientées, protégées du bruit grâce à une organisation judicieuse des façades et des loggias absorbantes. Les distributions intègrent coursives extérieures ombragées, paliers appropriables et transitions graduelles entre espaces publics et privés. Les appartements reposent sur un plan rationnel offrant flexibilité : pièce pivot indépendante, séjours modulables, halls polyvalents. La construction adopte un système mixte bois-béton, une trame régulière permettant une grande mutabilité et des façades porteuses en ossature bois assurant inertie, performance thermique et faible impact environnemental.
Le projet propose trois volumes compacts organisés perpendiculairement pour créer des vides qualitatifs, renforcer la perméabilité vers la forêt et dialoguer avec les gabarits existants du hameau. L’ensemble génère une morphologie lisible, inspirée des implantations rurales, avec une place d’entrée et une « cour de ferme » structurant la vie collective. Les bâtiments sont conçus pour offrir des typologies traversantes ou tri-orientées, protégées du bruit grâce à une organisation judicieuse des façades et des loggias absorbantes. Les distributions intègrent coursives extérieures ombragées, paliers appropriables et transitions graduelles entre espaces publics et privés. Les appartements reposent sur un plan rationnel offrant flexibilité : pièce pivot indépendante, séjours modulables, halls polyvalents. La construction adopte un système mixte bois-béton, une trame régulière permettant une grande mutabilité et des façades porteuses en ossature bois assurant inertie, performance thermique et faible impact environnemental.