Broc, Fribourg
2024 - Concours ouvert SIA142
Extension de l'école primaire dans le village historique de Broc
Equipe: Lionel Spicher Architecte, Studio Mint, Cambium Ingénierie
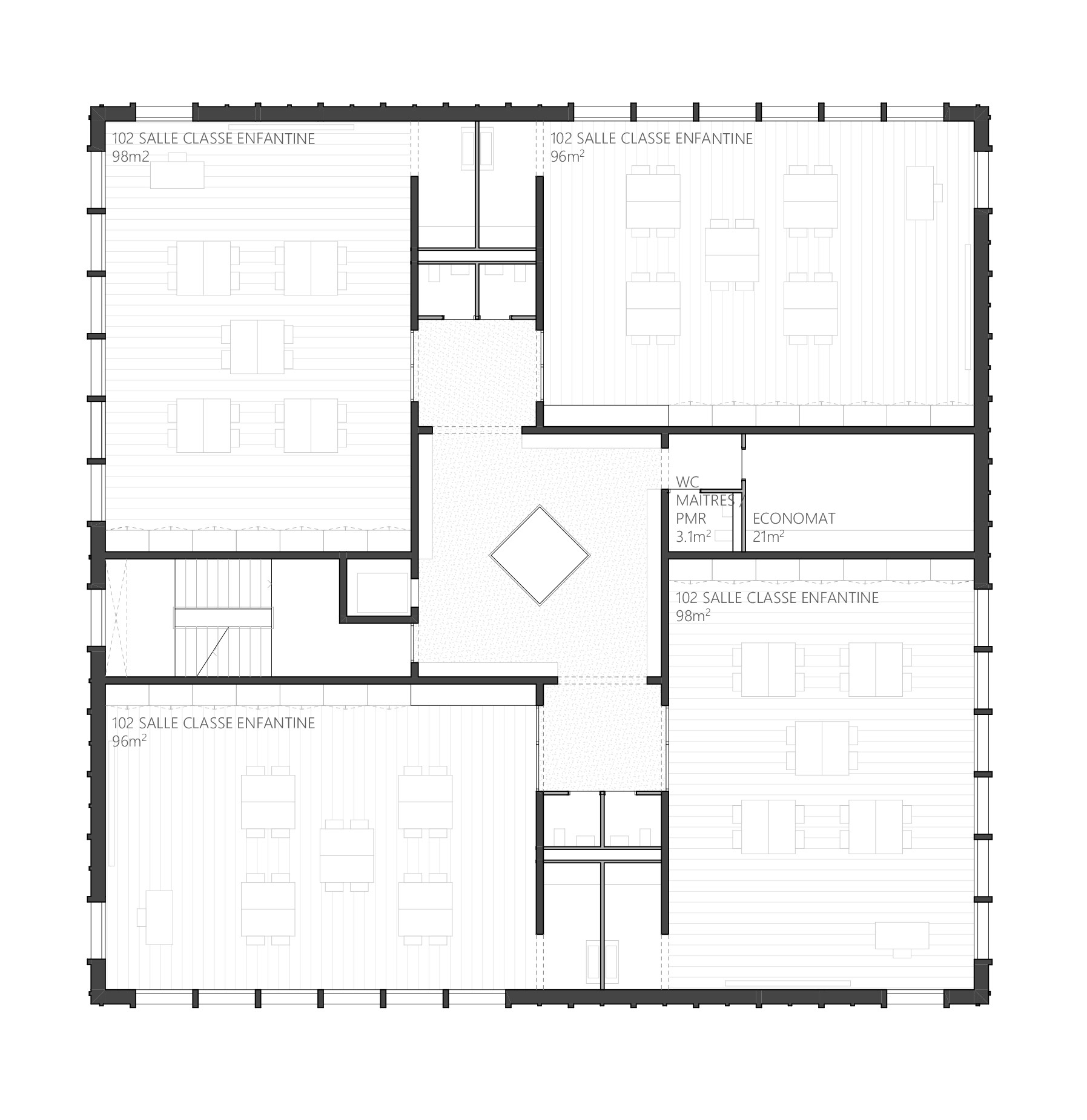
Le projet s’insère dans un ensemble patrimonial regroupant église, école néoclassique et maisons protégées. Deux nouveaux volumes non contigus — le bâtiment scolaire et celui de l’AES — complètent l’école existante et redéfinissent la profondeur de la parcelle. Leur implantation préserve les vues, respecte l’échelle villageoise et renforce la structure urbaine par une nouvelle place, un parc et des cheminements doux. Le bâtiment de l’AES, aligné à la rue, forme un rez unique à toiture à deux pans, offrant salles polyvalentes et accès directs au parking souterrain. Le bâtiment scolaire, compact et orienté vers place et jardin, organise trois niveaux autour d’un atrium central, véritable cœur éducatif reliant classes enfantines et primaires. La construction privilégie une structure bois–béton légère, murs en terre crue, planchers mixtes et façades ventilées en bois, constituant une architecture durable, saine et cohérente avec le caractère bâti du site.
Infographie: Marc Colomer
Back to Top