Plan-les-Ouates, Genève
2021 - Concours ouvert SIA142 - 2ème prix
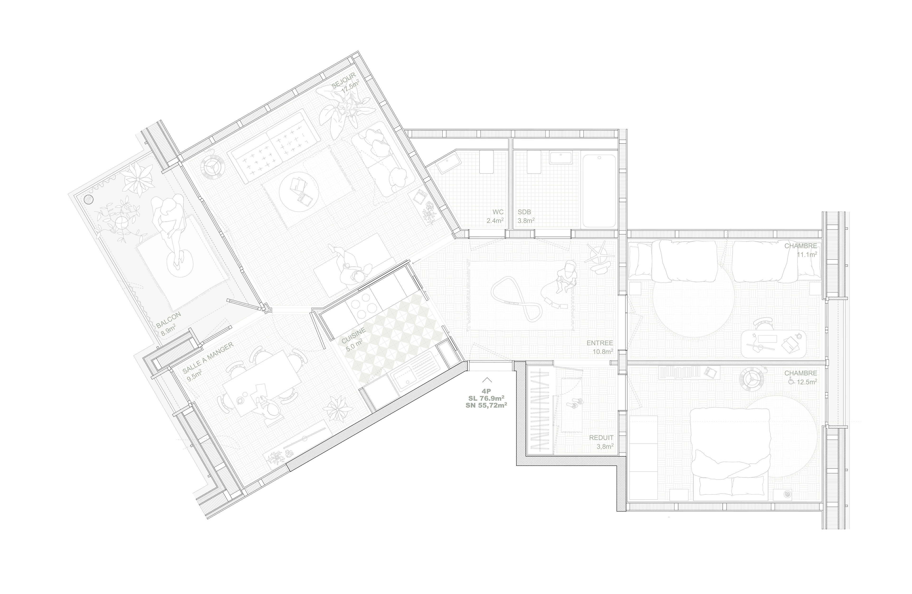
Le Rolliet pièce G2 - Logements HMB
Equipe: Julie Lucas


Le projet du futur bâtiment FEK s’inscrit dans le développement du quartier durable des Cherpines à Genève, un écoquartier ambitieux prévu pour 2035. Cette première phase d’urbanisation, située dans la zone agricole, vise à créer un ensemble de logements collaboratifs autour d’un espace central partagé, conçu pour favoriser les interactions sociales et communautaires. L’organisation du projet repose sur une distribution simple et claire, où les espaces communs (ateliers, buanderies, salle commune) jouent un rôle essentiel dans la convivialité et la dynamique de voisinage.
Le bâtiment adopte une forme de "barre" perpendiculaire à la rue, intégrée dans l’alignement urbain tout en préservant la confidentialité des espaces privés. La géométrie dynamique du bâtiment permet une meilleure orientation des appartements, optimisant ainsi la luminosité et le confort thermique. Chaque logement, traversant ou bi-orienté, bénéficie d’une excellente qualité d’habitat avec une flexibilité d’usage grâce à des espaces modulables.
Le projet met également l’accent sur la durabilité, avec l’utilisation de matériaux responsables, comme le bois-béton, et une gestion énergétique efficace. La toiture, espace accessible et végétalisé, intègre des panneaux solaires et des jardins communautaires, contribuant à la gestion des eaux pluviales et au bien-être des habitants. Ce bâtiment s’inscrit dans une démarche écologique et sociale, visant à offrir un cadre de vie de qualité tout en respectant les normes environnementales strictes du projet.
Back to Top