Grolley, Fribourg
2024 - Concours ouvert SIA142
Extension de l'école primaire
Equipe: Lionel Spicher Architecte, Studio Mint, Le Collectif
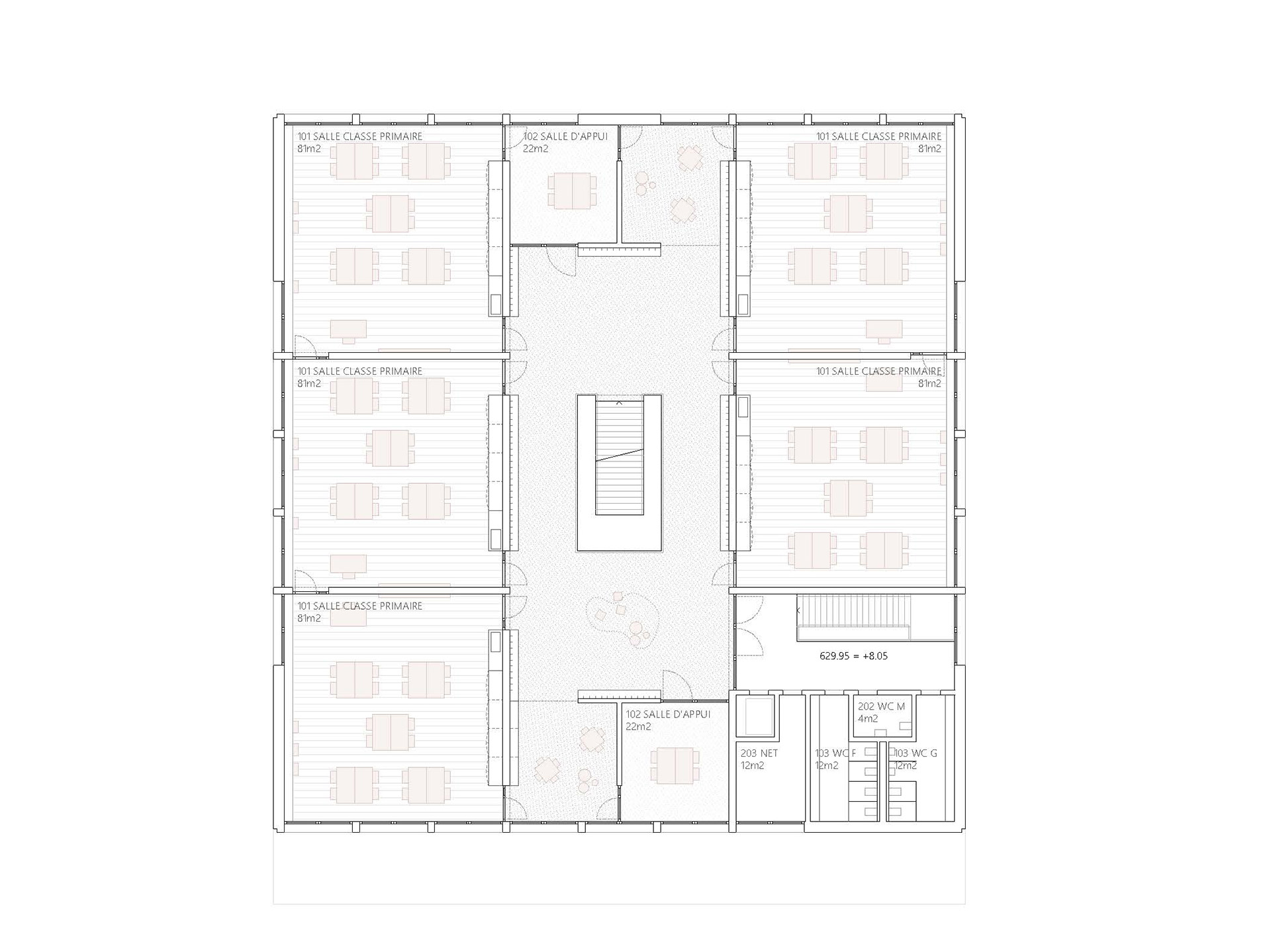
Le projet propose un bâtiment scolaire unique, compact, implanté au nord-est afin de préserver le fonctionnement de l’école existante et de structurer clairement le site. Cette position libère trois espaces extérieurs complémentaires : une place de jeux au sud, un préau minéral central connectant les deux écoles, et une grande prairie arborée au nord-ouest offrant un contact direct avec la nature. Le nouveau bâtiment regroupe salle de sport, réfectoire et extension scolaire, organisés autour d’un hall traversant et d’une rue intérieure lumineuse reliant toutes les fonctions. Les salles de classe, orientées est–ouest, bénéficient de vues dégagées et d’une excellente qualité d’éclairage. La construction associe un socle en béton pour les usages sportifs et une superstructure en bois avec dalles mixtes, assurant rapidité de montage, rationalité et faible impact environnemental. Une enveloppe en bois unifie l’ensemble et intègre naturellement le volume dans le paysage rural, marqué par les grandes toitures et les fermes environnantes.
Infographie: Marc Colomer
Back to Top