Plan-les-Ouates et Ville de Lancy, Genève
2025 - Concours ouvert SIA142 - mention du jury
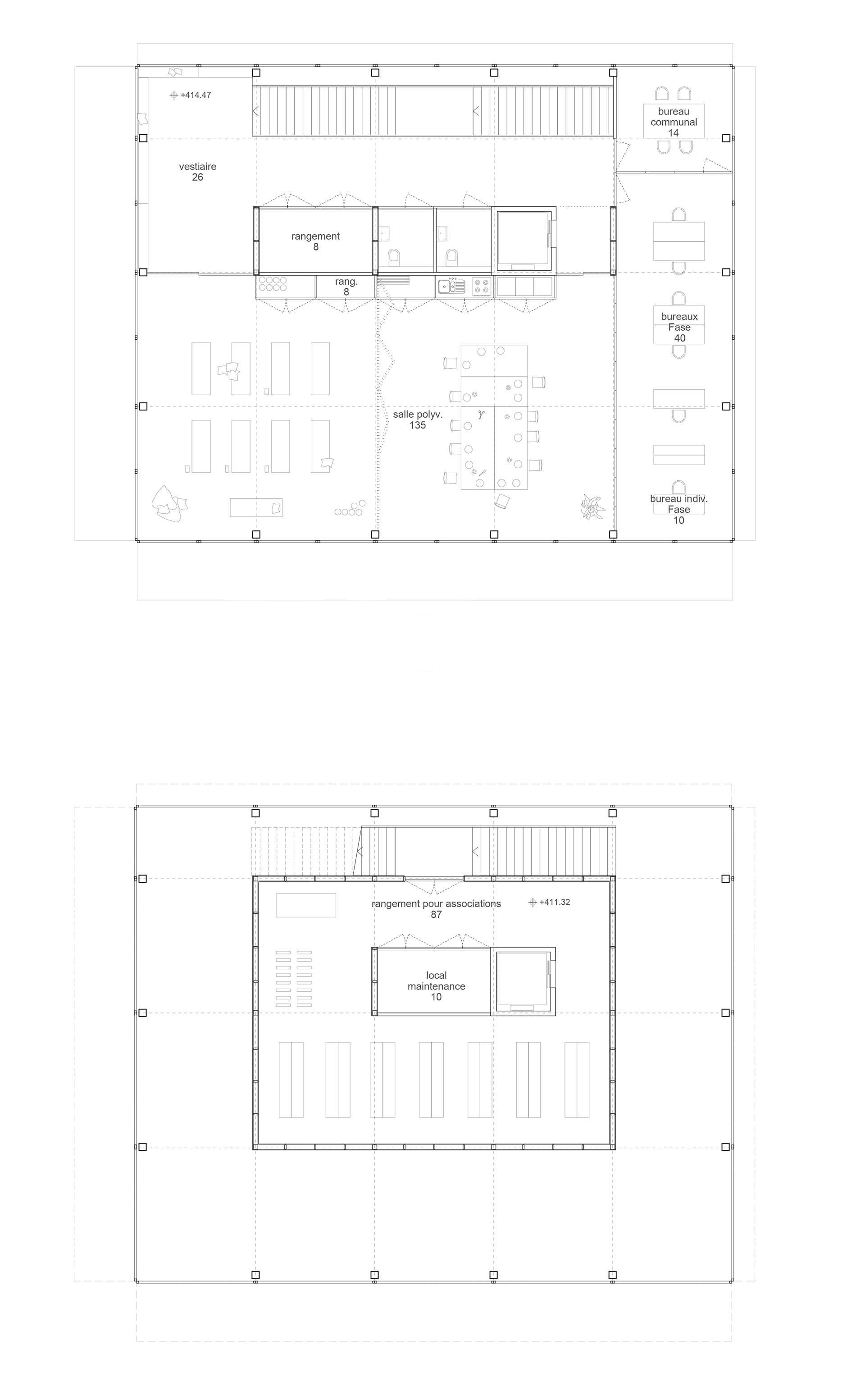
Nouvelle maison de quartier, La Chapelle - Les Sciers
Avec brenabrenas et société coopérative 2401
Image extérieure : Normalmap
Le projet propose la transformation de l'ancienne maison des jardins familiaux (AMJF) en maison de quartier intergénérationnelle, en conservant le bâtiment existant en béton armé comme cœur du dispositif. Une couronne habitée en bois d'épicéa local vient le couronner, accueillant deux salles polyvalentes modulables, des bureaux et des espaces de vie ouverts sur le paysage. L'implantation ponctuelle, sans sous-sol, préserve le sol et organise quatre entités extérieures distinctes (parvis, jardin partagé, jardin de pluie, promenade). Le projet joue un rôle de charnière urbaine entre deux nouveaux quartiers résidentiels et la lisière forestière, tout en prolongeant une bande d'équipements publics existante. La démarche constructive est résolument circulaire : façades en tôles de réemploi, terrasses en dalles de béton recyclé issues du bassin genevois, et caillebotis réemployés en revêtement intérieur. L'ensemble compose un signal paysager identifiable, ancré dans la mémoire collective du site et ouvert aux échanges entre générations.
Back to Top